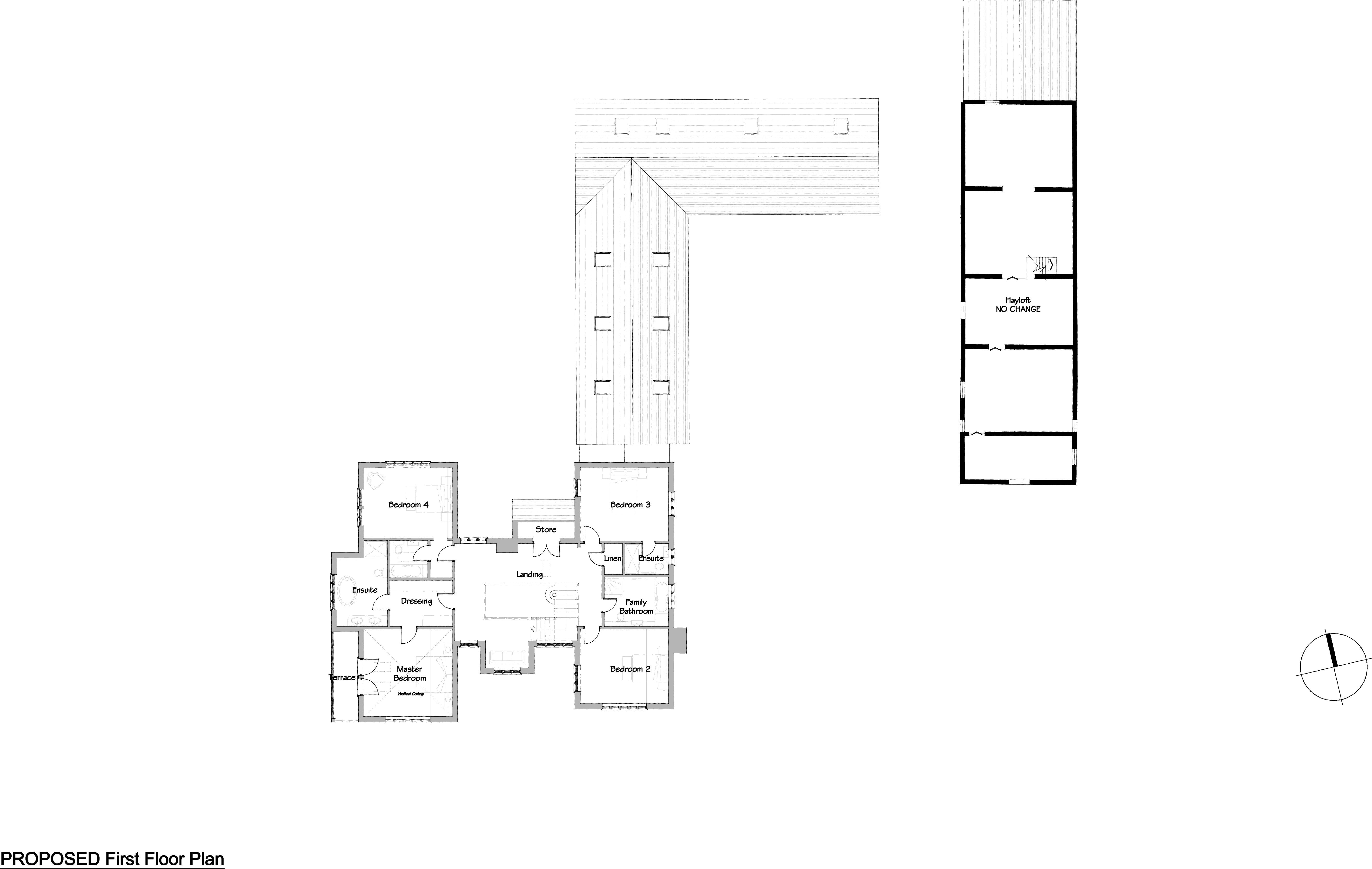
This fabulous new super home has been granted planning permission in Goostrey. Located in the Open Countryside, the proposals include the demolition of the existing farmhouse and the erection of a new two storey oak frame house that will be linked in to an existing single storey barn that will also be converted as part of the new family home. James Bell Architecture were appointed to obtain planning permission whilst the frame will be manufactured and erected by a separate oak frame specialists. The proposals will provide 6 bedrooms and a variety of family areas to rest, play and eat. Externally the two buildings will be joined together with a flush glass link to ensure that the two distinct eras of build are celebrated. A new 3 bay oak frame outbuilding to the rear will incorporate a bat roost.


Above – Photo of Existing site Before Development
Below- CGI visual of Approvals


